The Cobblestone — Single Wide Mobile Home • 2 Bed, 1 Bath • 693 Sq Ft
Cobblestone: A Stylish 2-Bedroom Home with a Compact Footprint
Affordable and Smart for Everyday Living
The Cobblestone is a 2-bedroom, 1-bath single wide home that makes the most out of just 693 square feet. With its 14x52 footprint, this home is designed for affordability, simplicity, and modern comfort. Whether you're starting out, downsizing, or just looking for a no-fuss lifestyle, the Cobblestone offers a streamlined solution that still feels like home.
This model works great for park lots, narrow rural land, or as a second property near the lake or beach. The small size doesn’t mean you lose livability—it just means you get what you actually need.
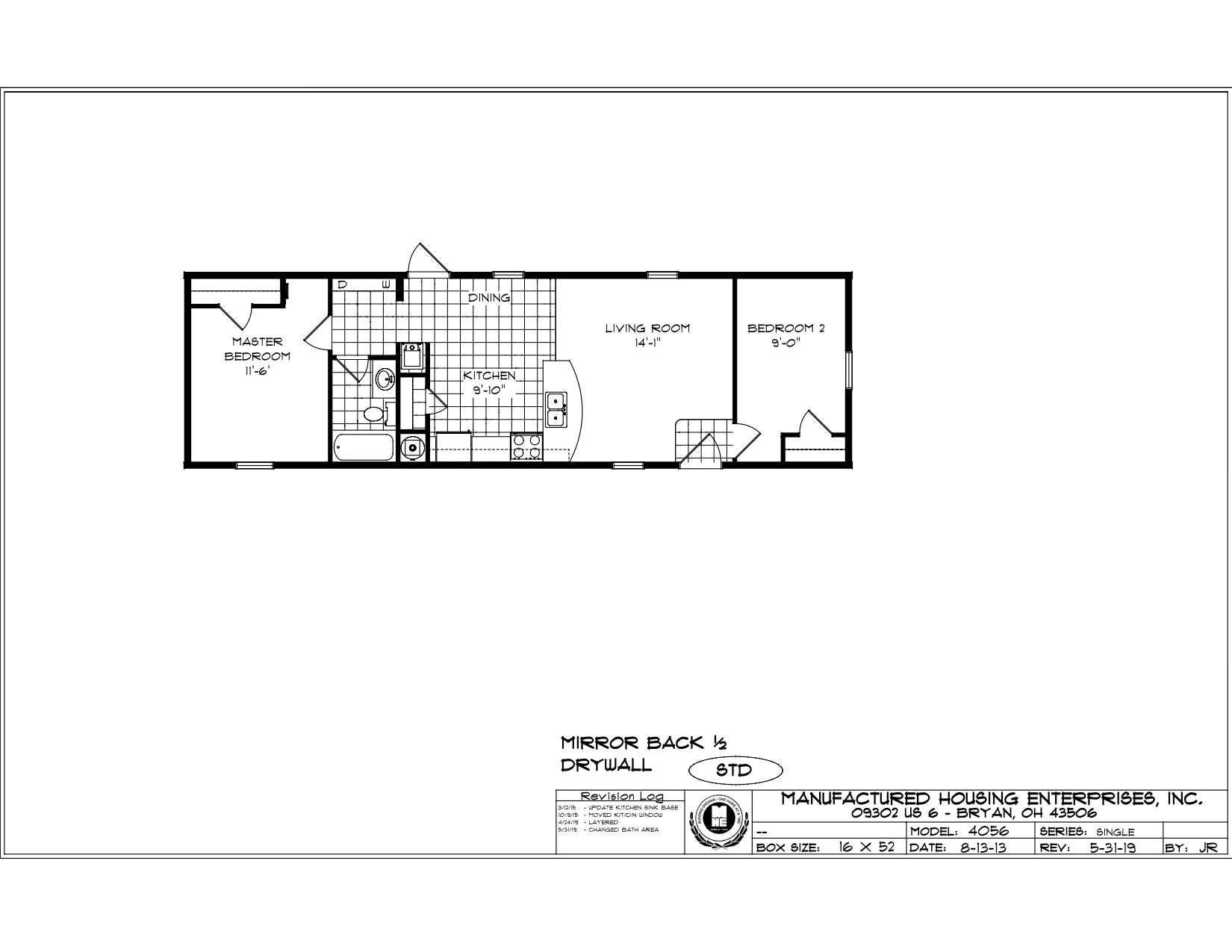
Efficient Layout That Works
The Cobblestone is built with purpose. The layout places the kitchen, dining area, and living room in one open space, which makes it feel bigger than the square footage suggests. The kitchen includes upper and lower cabinetry, with room for small appliances and daily cooking.
To the left of the home is the master bedroom, located near the bathroom and utility area. On the opposite end is bedroom 2, separated for privacy and flexibility. Whether you're hosting guests, setting up a home office, or raising a small family, this setup keeps things simple and functional.
Core Features You’ll Actually Use
Even at its compact size, the Cobblestone includes features you won’t want to live without:
-
A dedicated utility/laundry area
-
Open-concept kitchen and living space
-
Full-size bathroom with easy access from both bedrooms
-
Windows placed for natural light and ventilation
-
Energy-efficient build options
Need upgrades? Ask about LED lighting, vinyl flooring, or appliance packages that fit your style and needs.
Who the Cobblestone Is Made For
-
First-time buyers who need something affordable and simple to maintain
Retirees or empty nesters who want to downsize but still live comfortably -
Vacation home buyers who want a compact, low-maintenance setup
-
Buyers in states like Arizona, Florida, or South Carolina where space can be tight but outdoor living is big
With its modest size and clean design, this home fits perfectly on smaller plots or inside tight mobile home parks.
Delivery Across the U.S.
The Cobblestone is available for delivery in many U.S. states, including Indiana, Michigan, Georgia, and Alabama. We help you navigate local code requirements, utility hookups, and site prep so your delivery and install go smoothly.
Not sure if your land will work? Contact a HomeNation specialist and we’ll help you assess the fit.
Simple Financing and Customization Options
HomeNation offers flexible financing plans with no credit hit to get pre-qualified. If you're just getting started or want to see what you can afford, we’ll walk you through the process with zero pressure.
Want to personalize your layout? The Cobblestone is customizable—upgrade your cabinetry, flooring, or fixtures to create a space that fits your taste.
Clean, Minimal, and Ready to Live In
The Cobblestone proves that you don’t need thousands of square feet to feel at home. With just the essentials and none of the clutter, it’s perfect for buyers who want function without complication.
Take a 3D tour or speak with a Home Specialist today to get pricing for your zip code. Simple living starts here.





























