The Seaside — Single Wide Mobile Home • 2 Bed, 2 Bath • 728 Sq Ft
The Seaside: Affordable Comfort with Modern Touches
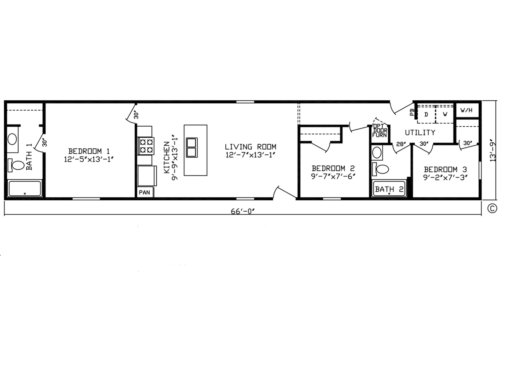
Compact doesn’t mean basic. The Seaside proves that small square footage can still deliver big comfort. With 2 bedrooms, 2 full bathrooms, and 728 square feet of thoughtfully designed space, this single wide home is perfect for couples, retirees, or anyone looking to downsize without losing quality.
This model fits well in tighter spaces—like parks, narrow lots, or vacation setups—but still includes the features and finishes buyers actually want in a home.
Clean Lines, Efficient Layout
The Seaside uses every inch wisely. The open-concept living, kitchen, and dining area flows naturally, making the space feel larger than it is. The bar-style seating adds functionality without needing a formal dining setup, and recessed LED lighting keeps the space bright and clean-looking.
The two bedrooms are set on opposite sides of the home for privacy, each with its own bathroom. This setup works well for roommates, small families, or those who expect guests often. The master includes a stand-up shower, while the second bath sits right next to the second bedroom—smart, simple, and user-friendly.
Included Upgrades That Feel Like Extras
Unlike other models where upgrades cost extra, the Seaside includes several higher-end features as standard:
-
Hardwood cabinets for a polished kitchen look
-
A full LED recessed lighting package
-
A stand-up shower in the master bathroom
-
Built-in storage and functional counter space
This model’s focus is on long-term livability. The finishes feel current, the lighting is energy-efficient, and the layout keeps daily routines simple and streamlined.
Who It’s Best For
-
Retirees seeking a cozy, low-maintenance home with style
-
Young couples buying their first home with a realistic budget
-
Downsizers who still want two full bathrooms and a private guest room
-
Vacation buyers looking for a compact getaway option that doesn’t feel temporary
With a narrow 14x56 footprint, the Seaside fits on lots where larger homes might not. It’s ideal for more urban park-style settings or tucked-away rural land.
Available Nationwide with Financing Options
The Seaside is available in multiple states including Florida, Indiana, Georgia, and beyond—places where mobile and manufactured homes offer serious value without the construction wait. Whether you're placing this on private land or inside a mobile home community, the footprint and layout make setup easy.
HomeNation offers low-down-payment financing options, and pre-qualification won’t affect your credit score. This helps make the Seaside even more accessible for first-time buyers or those working with tight budgets.
Customize to Fit Your Life
Want to add a kitchen island? Upgrade appliances? Adjust the layout? Ask about available customization options. Many buyers choose to personalize this home with minor tweaks that make it feel fully theirs.
A Smart, Stylish Choice
If you need a home that’s compact, comfortable, and ready to live in—without settling for builder-basic—then the Seaside may be just right. Reach out for pricing based on your zip code or speak to a Home Specialist to explore upgrade options and delivery details.
Your next chapter might just begin here.




































































