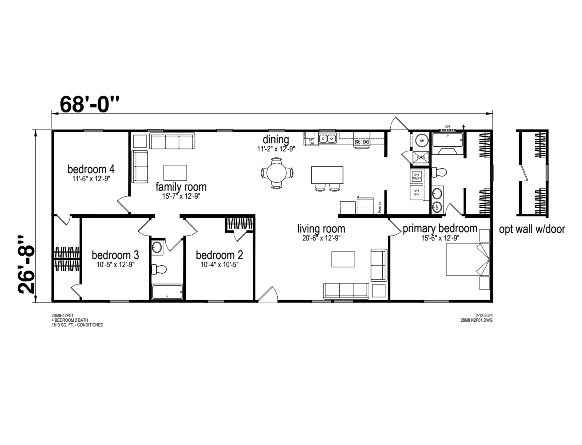
The Splendor — Double Wide Mobile Home • 4 Bed, 2 Bath • 1,813 Sq Ft
Enjoy the spacious room of a brand new Double Wide when you tour this home. This 3 bedroom, 2 bathroom floorplan offers enough space to remain liveable while also being efficient.
We make sure every manufacturer is up to our construction standard, so you can rest easy knowing youll get a solid, sturdy home. When purchasing a manufactured home like this, know you are getting exceptional value and quality. The particular layout of this floor plan encompasses a decent sized living area combined with the dining room, utility closet, and several roomy sleeping spaces.
Premium living is well within reach, with this well worked floorplan and print. At Home Nation, we are happy to have the opportunity to provide a home to you of this caliber. The master bedroom has plenty of room for you to retreat into your own personal hideaway, while everyone occupies the rest of the house. Finally, an affordable Double Wide that doesnt break the budget. Call us to get started today.













