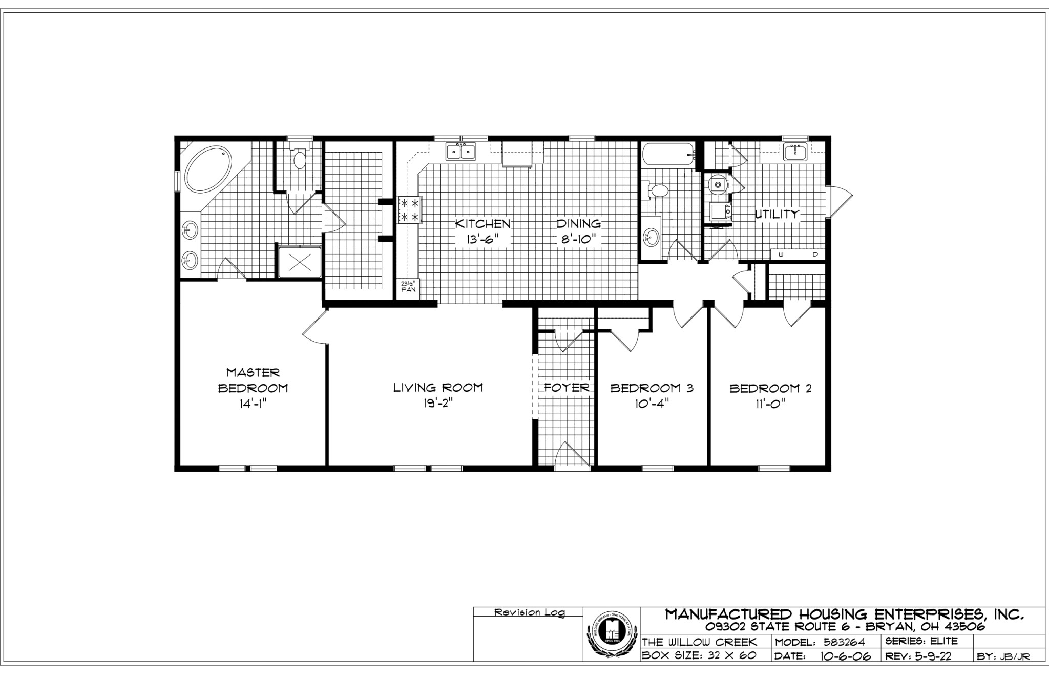
The Willow — Double Wide Mobile Home • 3 Bed, 2 Bath • 1,840 Sq Ft
Come home to this beautiful 3 bedroom/2 bath double wide home everyday!
This 3/2 large 1840 square foot manufactured home provides ample space to work, live and play in. Each bedroom offers plenty of living space and closet room.
The generous master bedroom includes a large bath with the option to upgrade—and a spacious walk-in closet—and a warm, friendly kitchen with attached dining area that opens to the bright living room.
When purchasing a new double wide home, know you are getting a great value and at an affordable price per square foot.
































