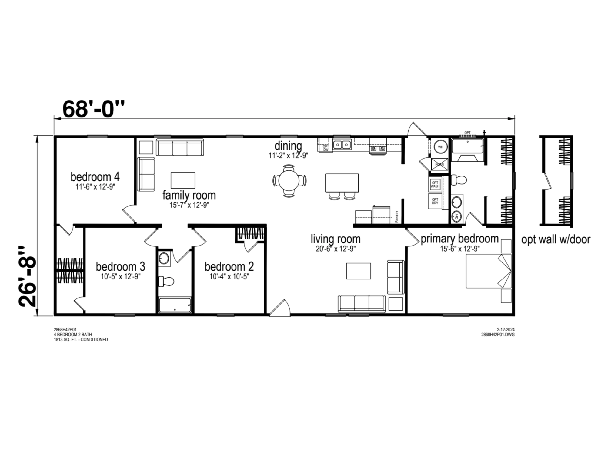
The Splendor — Double Wide Mobile Home • 4 Bed, 2 Bath • 1,813 Sq Ft
One of our most popular Double Wides, this floorplan has something for everyone. A spacious 4 bedrooms and 2 bathrooms means you can live here with room to spare.
Comfortable living at an affordable price can be yours with this manufactured home. For a quality family print at a attractive price, this home is clearly a winner. From California mobile homes to our own in Indiana, our homes are reasonably priced. Valuable, peaceful living at an affordable price, which cannot be beat!
For a much lower cost than a similarly sized stick built home, this manufactured house can be yours. Dont live in a shoebox, make sure you go with Home Nation. We simply offer MORE floorspace for the same price as our competitors. Accommodate for all your needs with this humble home. You will be pleased with the layout, from here on out. This attractive floorplan has it all, make sure whatever you home you choose has at least the features contained here!



