The Windsong — New Construction • 3 Bed, 2 Bath • 1,000 Sq Ft
Fits into a shipping container with 4" wall SIPs. Pictures are typical of this model and may not be this exact home, and may show upgrades not included in the price of this home, price subject to change.
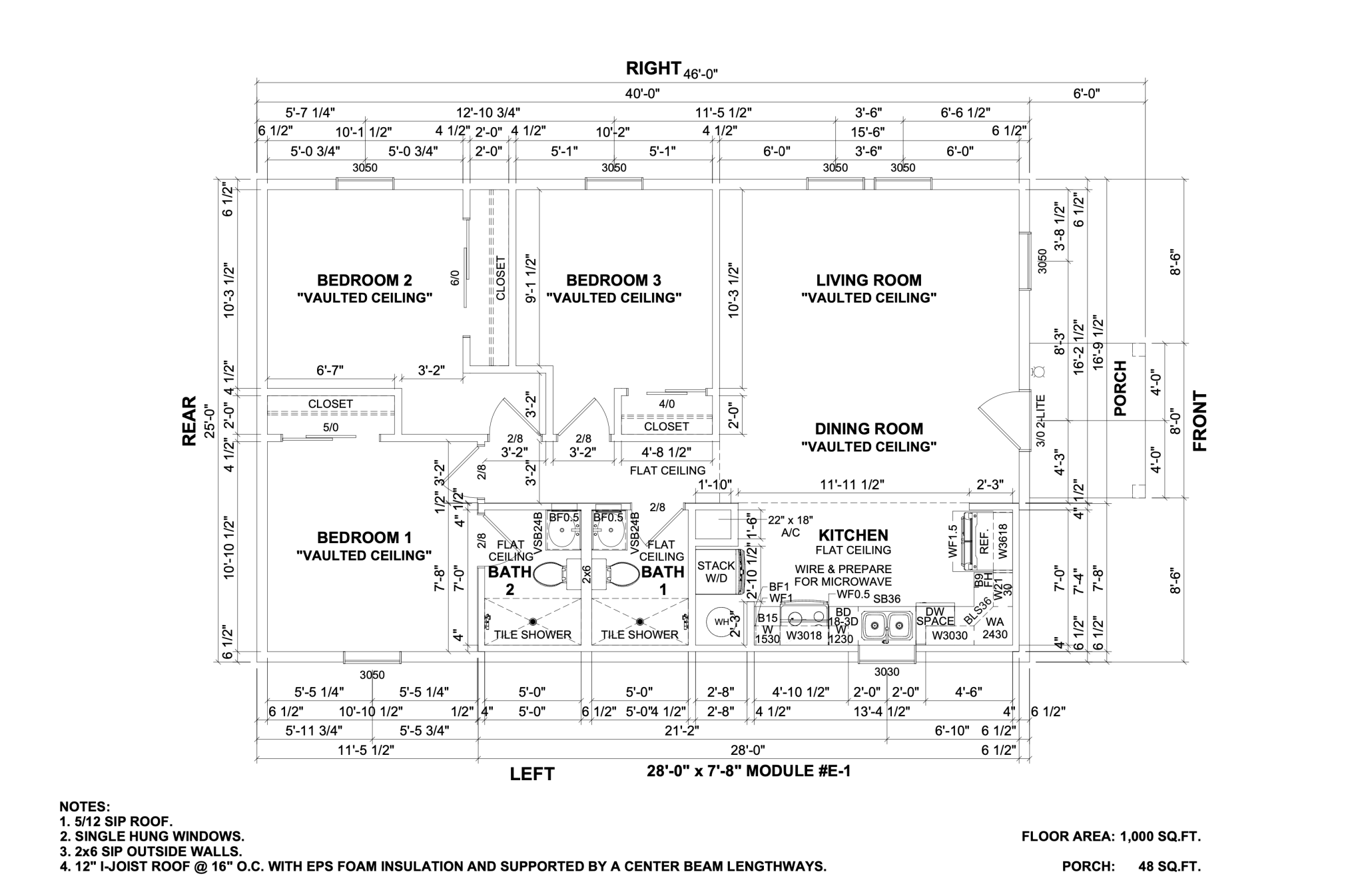
Windsong – 3-Bedroom Site-Built Home, 988 Sq. Ft.
The Windsong is a thoughtfully designed 25' x 40' site-built home with 1000 square feet of living space. Despite its compact footprint, this home delivers modern comfort, smart design, and all the essentials for everyday living.
Home Features:
-
3 Bedrooms – efficient layout for family living, a guest room, or home office.
-
2 Full Bathrooms – rare in a sub-1,000 sq. ft. home, providing added convenience for families or guests.
-
Open Living Space – kitchen, dining, and living areas flow together for a bright, welcoming atmosphere.
-
Efficient Design – makes the most of every square foot, keeping the home affordable without sacrificing function.
Built Strong, Built Right
Constructed directly on your land with durable wood-frame construction, the Windsong is built to modern building codes across the country. Its sturdy design provides peace of mind while offering the flexibility and long-term value of traditional site-built housing.
Why Choose the Windsong?
-
Compact 988 sq. ft. layout with 3 bedrooms and 2 full baths
-
Durable wood-frame construction engineered for long-lasting quality
-
Affordable site-built home option for small families, couples, or downsizing homeowners
-
Smart design that combines function, comfort, and efficiency
The Windsong is a compact yet comfortable site-built home that proves you don’t need a large footprint to enjoy modern living. It’s the perfect choice for anyone looking to build an affordable, durable home on their own land.


-page-001.jpg)










