The Island Modular — Modular Home • 1 Bed, 1 Bath • 704 Sq Ft
Affordable Site-Built Home – 1 Bedroom, 1 Bath, 704 Sq. Ft.
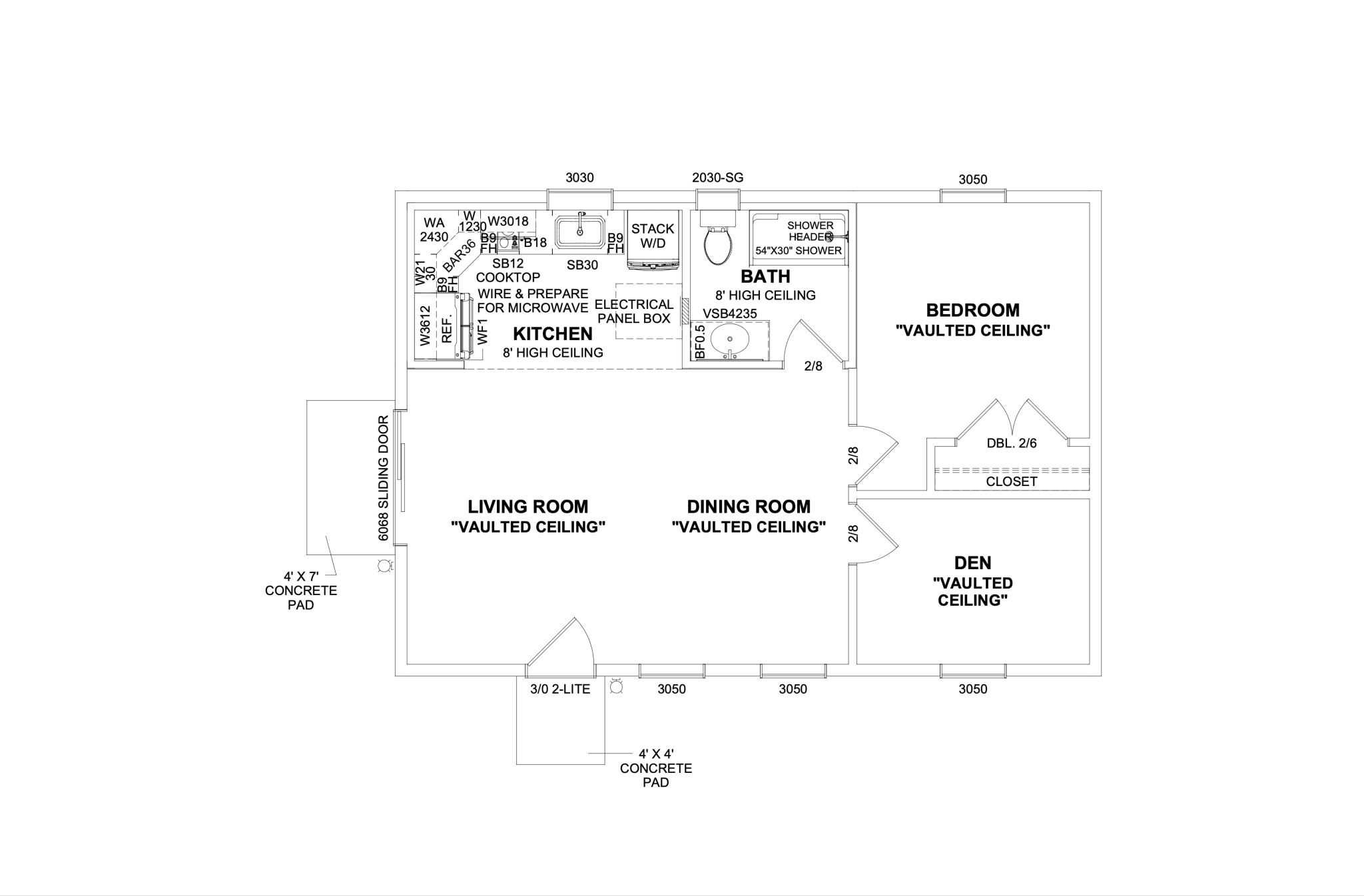
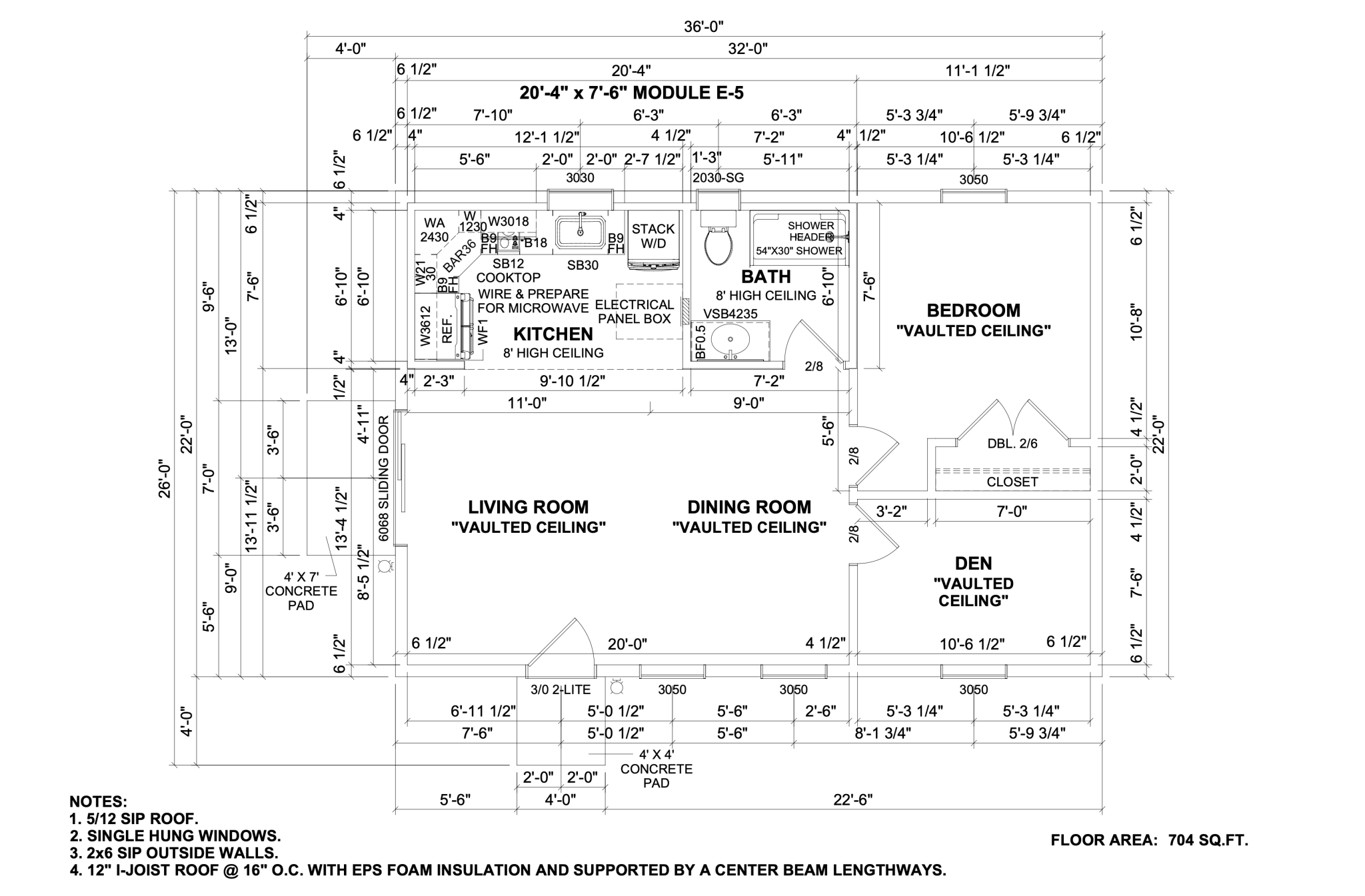
If you’re looking for an affordable and durable home to build on your land, this 22' x 32' (704 sq. ft.) site-built house is the perfect solution. Compact yet functional, it combines modern comfort with long-lasting quality construction.
Home Features:
-
1 Comfortable Bedroom – fits a full or queen bed, with space for storage.
-
1 Full Bathroom – thoughtfully designed with all the essentials.
-
Open-Concept Living Area – seamless flow between kitchen and living space, perfect for everyday living or entertaining.
-
Smart Layout – every inch of the 704 sq. ft. floor plan is maximized for efficiency and comfort.
Built for Strength and Safety
Unlike manufactured housing, this home is site-built using traditional wood-frame construction directly on your land. Every home is engineered and built to meet the Miami-Dade County Hurricane Building Code, one of the strictest in the nation. That means you can feel secure knowing your home is designed to withstand high winds and severe weather conditions common in Florida and coastal regions.
Why Choose This Home?
-
Affordable site-built option that fits smaller lots or starter budgets
-
Durable wood construction for lasting value and easy customization
-
Meets strict hurricane codes, ensuring peace of mind for homeowners
-
Ideal for those downsizing, creating a guest house, or starting with a manageable first home















