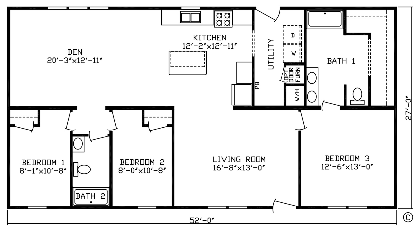
The Hazelwood — Modular Home • 3 Bed, 2 Bath • 1,152 Sq Ft
Stunning home at an affordable price!
The space you need with an amazing value! This 1152 square foot 3 bedroom/2 bath modular home offers comfortable living at an affordable price. With the master bedroom and kitchen anchoring the mobile home, it provides ample space for relaxing in the living room or entertaining guests.
A modular home is the reasonable, cost-efficient option for your everyday living needs.



