The Barton III — Modular Home • 3 Bed, 2 Bath • 1,568 Sq Ft
Relax and unwind in this fabulous 3 bedroom/2 bath modular home.
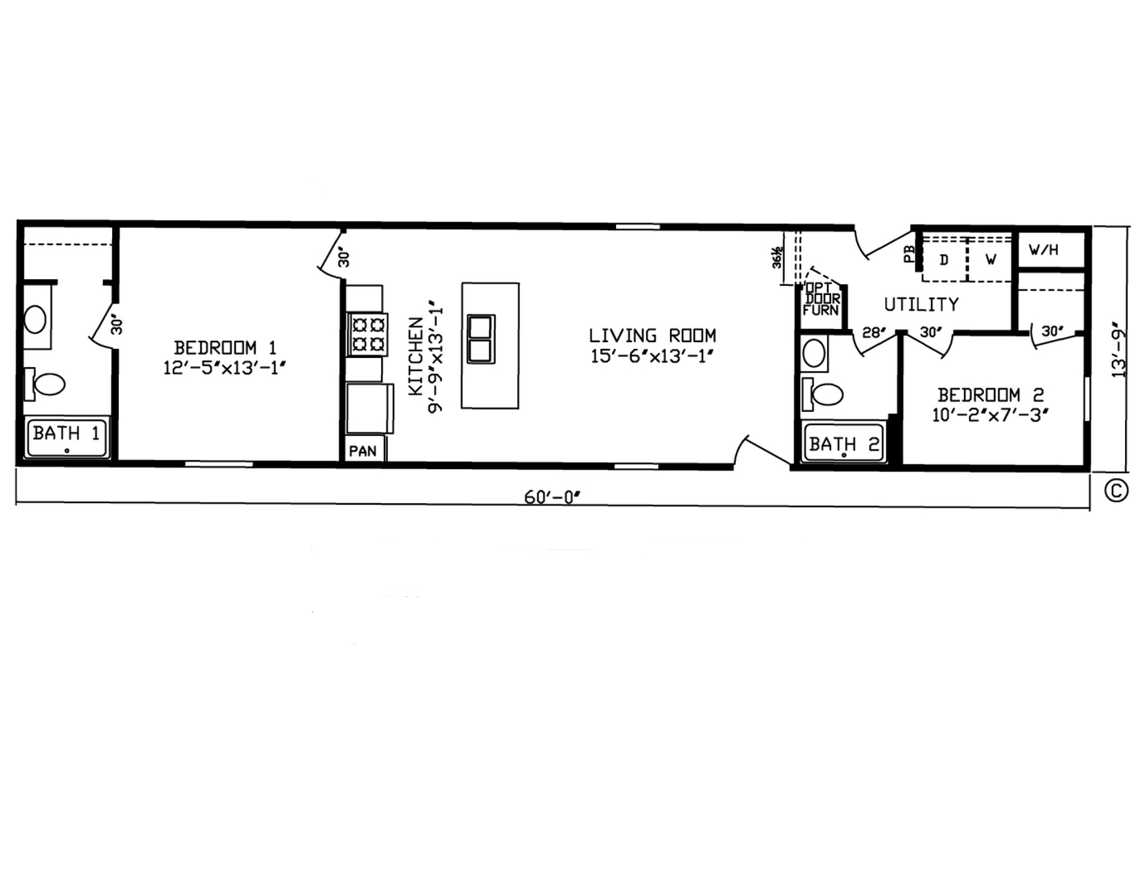
This 1568 square foot modular home offers convenience, style and space. The eat-in kitchen opens to a huge living room, with the bedrooms off to the side. Large walk-in closets, full baths and a space for utilities, this double wide home will suit all of your needs.
Energy efficient and built to a higher standard due to its controlled environment construction, this 3/2 modular home is the perfect place to call home!
Related Homes
Helpful Articles















































